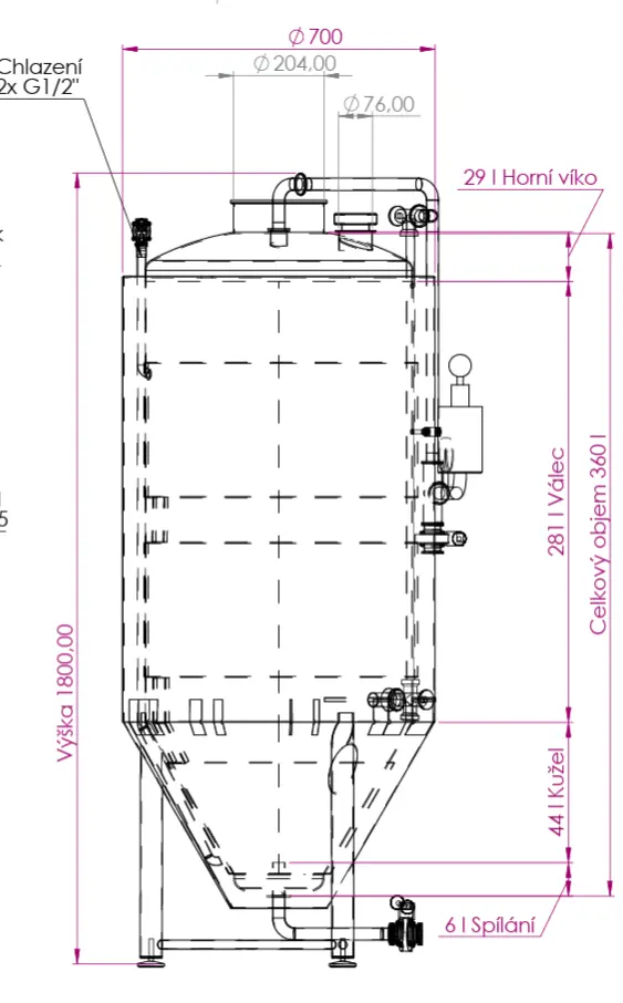
CK tank 360 l
Použití:
Minipivovar
- Categories: CK tanky
CK tank 360 l je cylindro-kónická nerezová nádoba navržená pro malé a střední pivovary, restaurační provozy i náročné domácí sládky. Konstrukce vychází z reálné pivovarské praxe a klade důraz na hygienu, snadnou obsluhu a stabilní řízení kvašení.
Díky kuželovému dnu umožňuje efektivní odkalení a sběr kvasnic, chlazený plášť zajišťuje přesnou kontrolu teploty během celého procesu. Tank je vhodný pro klasické i tlakové kvašení a umožňuje vedení celého procesu v jednom tanku bez nutnosti přetáčení.
Objem: 360 l
Konstrukce: cylindro-kónická
Materiál: nerezová ocel AISI 304 (potravinářská kvalita)
Vnitřní povrch: hygienické provedení
Kužel: pro odkalení a sběr kvasnic
Chlazení: chlazený plášť (válec + kužel)
Provoz: kvašení, dokvašování, ležení
Tlakové provedení: ano (dle konfigurace)
Připojení: výpust piva, výpust kvasnic, vzorkovací ventil, CO₂, pojistný ventil
Čištění: CIP mycí hlavice
Izolace: volitelná (dle konfigurace)
Soubory ke stažení budou doplněny.

